McCullough-Trigg Hall accommodates approximately 150 students in suite-style, co-ed housing units. McCullough-Trigg is very popular with students who desire a more private, suite-style living space. Groups of four students live in private rooms and share a bathroom and a small common area within the suite. McCullough-Trigg offers more privacy than the traditional residence hall while providing the benefit of a community atmosphere with other students living in their suite and on their floor. Trigg is one of the residence halls encompassing Legacy Courtyard, and students can easily step out of their quiet retreat into the hustle and bustle of on-campus life.
This community also houses special interest groups led by Residence Assistants (RAs), focusing on exciting topics such as True Crime, Movies, Anime, Chess, and Gaming.
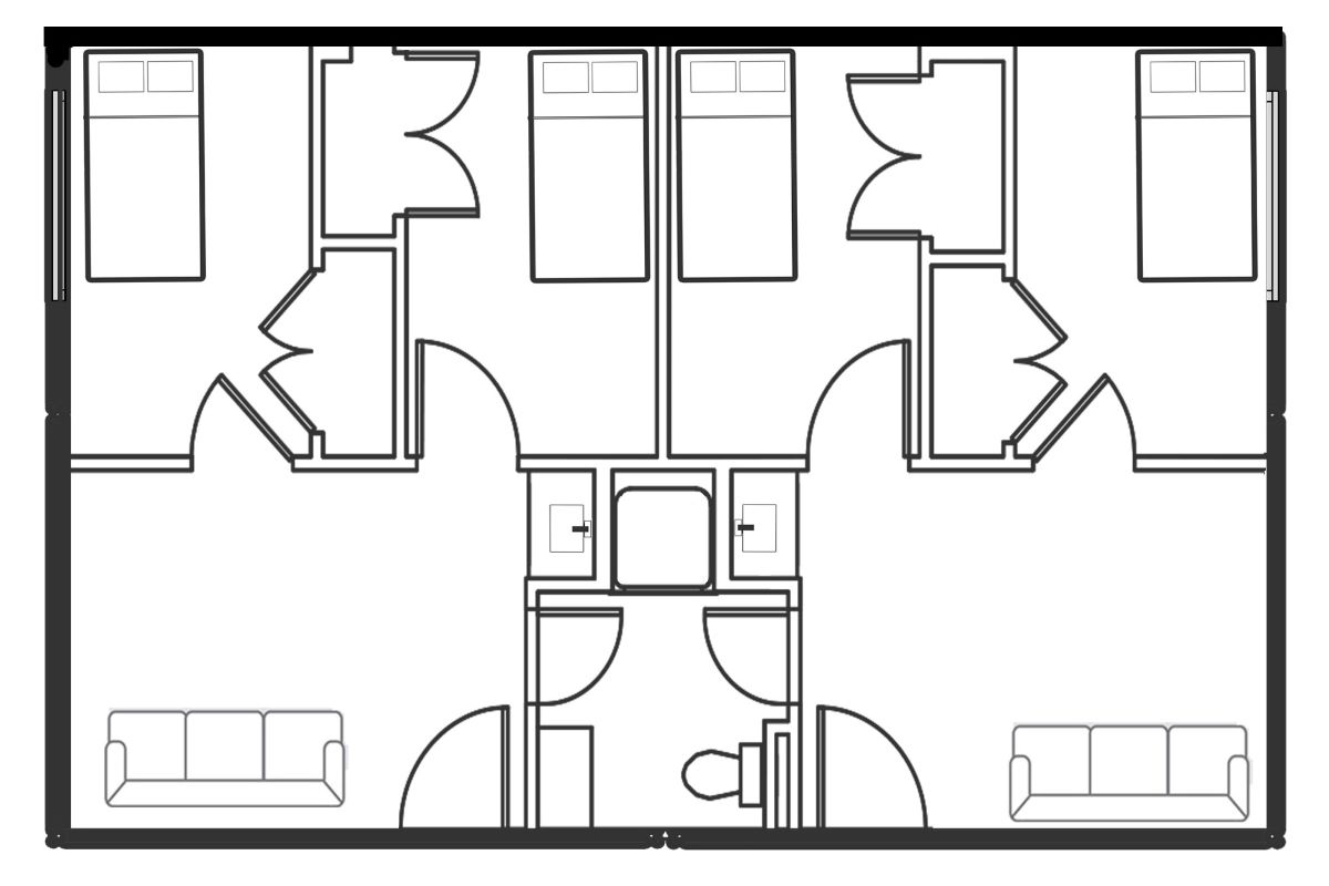
Details
- Capacity: 152
- Number of floors: 6
- Gender: Coed by floor
- Room Style: Suite style, private bedrooms attached by a small shared living area
- Bathrooms: private; shared by 4 suitemates
- Mattress Size: Standard Twin
- Included furniture: Bed, mattress, dresser, desk, chair, built-in closets, blinds, micro-fridge, and microwave
Mailing Address
3705 Louis J. Rodriguez Dr., (Box Number*)
Wichita Falls, TX 76308-2099
*Students will receive their box number from the MSU Texas Post Office upon arriving on campus
Amenities
- Key card entrance
- Community front desk
- Two elevators
- High-speed Wi-Fi
- Cable TV
- In-room sink
- Community lounges and study spaces
- Community kitchen (located on the first floor)
- Laundry facilities (located on the first floor)
- Easy courtyard access





